Ponte Nelle Alpi - rustico
Rif. 1053PNA
€ 115 000
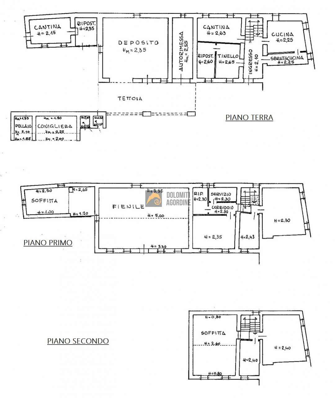
Indirizzo : Località Cugnan - Ponte Nelle Alpi Ponte nelle Alpi località Cugnan, Abitazione rurale, con annessa corte, scoperto e locali ex stalla, fienile e stie. L'abitazione tipica è posta in centro della Frazione di Cugnan, gode di un ampia corte esclusiva e di generosi volumi utilizzabili e trasformabili. L'abitazione dovrà essere ristrutturata. Gli interventi da fare per la ristrutturazione sono importanti, possono essere eseguiti anche nell'ottica di ottenere parte di abitazione ricettiva ad uso vacanze, il volume ex agricolo si presta anche ad un utilizzo produttivo e di accoglienza. La casa si divide su tre piani con volumetria ben utilizzabile. Occasione molto interessante Per maggiori info e visite contattaci in Agenzia al 3494663199
Dettagli :
| Condizioni della proprieta' | da ristrutturare |
|---|---|
| Spazio abitabile | 301 m² |
| Numero di camere da letto | 4 |
| Numero di bagni | 1 |
Geolocalizzazione :
Classe energetica :
Non definito
